

全國服務熱線
行車式刮泥機
一、概述
行車式刮泥機適用于污水處理廠平流式沉淀池。其主要功能是將沉降在池底的污泥刮集至積泥槽,以便污泥回流或濃縮脫水,并將水面浮渣撇向集渣斗(如有浮渣的話),通過浮渣漏斗排出池外,以便進一步處理。運行形式是邊運行邊吸泥。
二、型號特點
型號表示方式

特點
1.工作橋采用桁架結構,簡潔、美觀、輕巧。
2.維護簡單方便,運行費用低。
3.傳動減速機多種選擇:采用軸裝式,結構簡單緊湊,檢修方便;采用擺線針輪減速機,價廉物美、傳動效率高。
4.根據用戶需要,行走輪輪面材料可以選用鋼輪(標準配置)、工程橡膠輪、尼龍輪、聚氨酯輪。
5.電氣元件均采用戶外型,安全可靠,可隨機控制和遠程控制。輸電裝置可以根據用戶要求采用電纜掛架(標準配置)、劃觸線、電纜滾筒等不同型式。
6.設備可以按用戶特定尺寸制造。與水接觸的部件可以用不銹鋼制作。
三、參數及規格

構造及工作過程
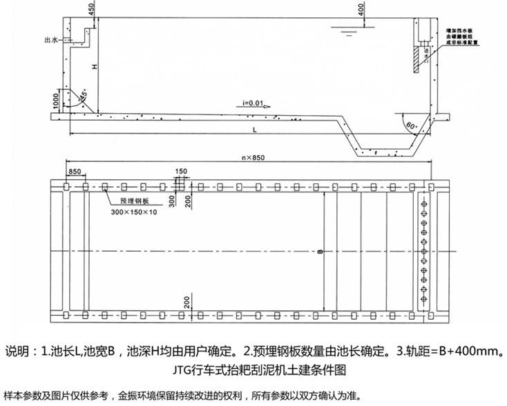
行車式抬耙刮泥機由工作橋、卷揚機構、刮臂桁架、刮泥板、驅動機構、電控箱等主件和出水三角堰板、浮渣刮板等附件(是否提供由雙方協商確定)組成。行車式抬耙刮吸泥機如圖1所示。
行車式抬耙刮泥機由四點支撐行走大梁橫跨在平流式沉淀池上,雙邊驅動,池兩邊均鋪設鋼軌(采用工程橡膠輪、尼龍輪、聚氨酯輪不需鋪設鋼軌,但要增設四點導向輪),刮泥機沿池臺軌道從一端運行到另一端。運行時,刮泥板將泥砂刮入集泥槽中。如由浮渣刮板,同時將浮渣刮入渣斗中。回程時,刮臂桁架和刮泥板靠卷揚機構抬離池底,刮渣板靠電動推桿抬離水面,完成一個行程,刮泥機回到起始位置。兩端行程開關控制其往復運行。運行和停車時間根據污泥量由時間繼電器控制。
行車式抬耙刮泥機技術參數見表1,設備土建條件圖見圖2。

