

全國服務熱線
全程水處理器
一、概 述
全程水處理器是集除垢防垢、殺菌滅藻、防腐、超凈過濾的多種功能于一體的綜合性設備,具有全過程處理功能的、可實現自動檢測和控制的、能夠在大口徑和高負荷條件下自動切換水流方向并實現自動排污的水處理器。全程水處理器針對各種水循環系統中普遍存在的腐蝕、結垢、菌藻、水質濁度等四大問題,有效的解決了各種頻譜間及與電暈效應場間的互相干擾、制約的重大難題,實現了對水質的防垢、防腐、殺菌、滅藻、超凈過濾的綜合優化處理。
二、產品性能
1、工作原理
全程綜合水處理器是利用變頻高頻發生器所產生的交變電磁場對水進行處理,使原有的大蒂合狀態水的結合鍵被打斷,解離成活性很強的單分子或小蒂合狀態的水,從而改變了水的物理結構與特性,增強了水分子的極性,增大了水分子的偶極矩,阻止了水垢的形成。在變頻高頻電磁場作用下水垢得以控制和去除,變頻高頻電磁場的不斷作用,使得水中溶解氧和水分子不易析出,從而抑止氧化腐蝕和原電池腐蝕的發生,起到了良好的防腐阻銹的作用。另外,變頻高頻電磁場使細菌、藻類賴以生存的環境被破壞,并且溶解氧在變頻高頻電磁場的作用下形成了一定量的O3、H2O2等對細菌、藻類具有極強殺傷力的物質,起到了殺菌、滅藻的作用。對循環水中的懸浮物,可以在電式處理的同時進行過濾,達到控制水質濁度的目的。
2、技術參數
控制腐蝕率:<0.0091毫米/年,
工作電壓:220V/50HZ
功率:120W-600W
過濾效率>72%-99%,
防垢除垢效率>95%,
殺菌滅藻>92%
壓力損失0.01-0.03MPa
工作環境要求: -25℃~+50℃
相對濕度:<95%
介質溫度:0℃~80℃
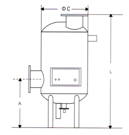
3、設備選型

型號 | 公稱直徑(mm) | 處理流量m3/h | 外型尺寸mm | 功率w | 凈重kg | ||||
L | A | φC | D | ||||||
OYQC-50 | 50 | 10-30 | 960 | 580 | 300 | 40 | 220 | 150 | |
OYQC-80 | 80 | 18-50 | 1000 | 580 | 300 | 40 | 230 | 170 | |
OYQC-100 | 100 | 40-100 | 1080 | 580 | 300 | 40 | 270 | 240 | |
OYQC-150 | 150 | 85-180 | 1350 | 620 | 350 | 50 | 270 | 360 | |
OYQC-200 | 200 | 180-300 | 1375 | 640 | 400 | 50 | 320 | 650 | |
OYQC-250 | 250 | 300-530 | 1400 | 680 | 500 | 50 | 330 | 890 | |
OYQC-300 | 300 | 500-800 | 1600 | 700 | 600 | 50 | 380 | 1320 | |
OYQC-350 | 350 | 700-1140 | 1700 | 740 | 700 | 80 | 390 | 1670 | |
OYQC-400 | 400 | 1040-1490 | 1800 | 800 | 800 | 80 | 450 | 1940 | |
OYQC-450 | 450 | 1300-1890 | 2050 | 880 | 900 | 80 | 460 | 2450 | |
OYQC-500 | 500 | 1625-2320 | 2400 | 960 | 1000 | 80 | 520 | 2760 | |
三、安裝注意事項
1、為了便于設備安裝檢修,主體頂端與*大外徑需與其他設備相距400mm以上。
2、禁止在無水狀態下長時間開啟設備。
3、設備應為旁通式安裝,以滿足在不停機狀態下檢修設備及反沖洗濾體的需要。
4、系統運行時當進出水口壓差達到0.03-0.06Mpa,就應進行反沖洗,新系統初次使用時,每8個小時反沖洗1-2次,正常運行后,使水質情況而定。
5、反洗:打開旁通閥,關閉設備進水閥及電源,打開排污閥,進行反向沖洗濾體,時間為10-20s左右(視水質而定)。當進出水口壓差恢復到原壓差值,關閉排污閥,開啟進水閥,關閉旁通閥,截圖220V電源,使設備正常工作。